Referenz 508 · KTV Rostock

Mietwohnung Rostock KTV

Referenzobjekt aus unserer Praxis: eine 2-Zimmer-Wohnung im 1. Obergeschoss eines sanierten Mehrfamilienhauses in der Kröpeliner-Tor-Vorstadt – ca. 72 m², Einbauküche, Wannenbad mit Fenster, Balkon, Laminat, Fern-Zentralheizung, direkt am Stadthafen. Der Fokus dieser Referenz: wie eine gut geschnittene 2-Zimmer-Wohnung in begehrter KTV-Lage mit strukturierter Mieterauswahl zügig und dauerhaft besetzt wird.

Hinweis: Diskrete Darstellung ohne Preis- und Mieteinnahmen. Angaben ohne Gewähr.

72 m²Wohnfläche
2 Zi.Zimmer
SaniertZustand
VermietetStatus

Kurzprofil / Fakten

  • ObjektartMietwohnung (2 Zimmer)
  • OrtRostock · KTV (18057)
  • StraßeNeue Werder Straße (ohne Hausnummer)
  • Lage im Haus1. OG links
  • Wohnflächeca. 72 m²
  • Zimmer2
  • KücheEinbauküche
  • BadWannenbad mit Fenster · gefliest
  • BalkonJa (groß)
  • BodenLaminat
  • HeizungFern-Zentralheizung
  • KellerJa + Abstellraum auf Etage
  • ZustandSaniert · modernisiert
  • UmgebungAm Stadthafen · Uninähe
  • StatusVermietet
  • Referenz-ID508

Referenzen sind Beispiele, nicht 1:1 übertragbar. Angaben ohne Gewähr.

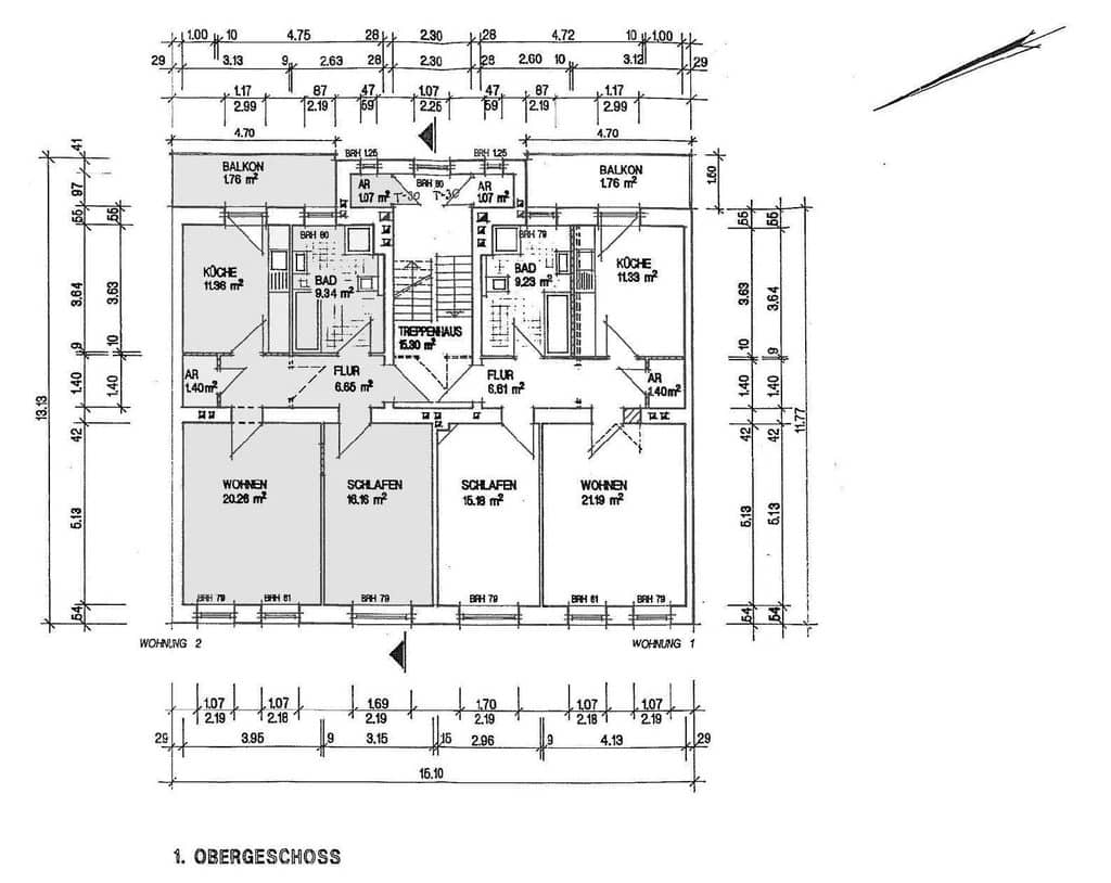
Grundriss 1. OG – 2-Zimmer-Mietwohnung in der KTV am Stadthafen Rostock – Referenz 508
Grundriss 1. OG – 2-Zimmer-Wohnung in der KTV am Stadthafen · Referenzobjekt 508.

Worum es hier geht

Eine sanierte 2-Zimmer-Wohnung in der KTV am Stadthafen – alle Räume separat begehbar, Einbauküche, großer Balkon, Wannenbad mit Fenster.

Bei extrem hoher Nachfrage in der KTV ging es darum, die richtige Balance zwischen Vermietungstempo und sorgfältiger Mieterauswahl zu finden.

Keine Steuer- oder Rechtsberatung. Jede Immobilie ist individuell.

Ausgangslage
Sanierte 2-Zimmer-Wohnung am Stadthafen
Die Wohnung liegt in der Neuen Werder Straße in der Kröpeliner-Tor-Vorstadt – wenige Gehminuten vom Rostocker Stadthafen, der Universität und dem Kröpeliner Tor entfernt. Die Lage gehört zu den gefragtesten Wohnadressen in Rostock: Banken, Gastronomie, Einkaufsmöglichkeiten und öffentlicher Nahverkehr sind in unmittelbarer Nähe. Die Wohnung selbst bietet zwei Zimmer auf ca. 72 Quadratmetern im ersten Obergeschoss links. Der Grundriss ist klar strukturiert: alle Räume sind separat vom Flur begehbar. Die Küche ist mit einer Einbauküche ausgestattet, das Bad verfügt über eine Wanne und ein Fenster. Ein großer Balkon erweitert die Wohnfläche nach draußen. Die Böden sind durchgehend mit Laminat belegt, beheizt wird über Fern-Zentralheizung. Zur Wohnung gehören ein Kellerabteil und ein Abstellraum auf der Etage. Das Mehrfamilienhaus wurde saniert und modernisiert, der große Innenhof bietet Ruhe trotz zentraler Lage.
Herausforderungen
Herausforderungen

Nachfrage strukturieren

Hohe Nachfrage erfordert strukturierte Auswahl: Auf eine 2-Zimmer-Wohnung in dieser Lage kommen regelmäßig Dutzende Anfragen – die Schwierigkeit liegt nicht im Vermieten, sondern im Filtern.

Grundriss-Vorteil nutzen

Alle Räume separat begehbar als Vorteil kommunizieren: Viele 2-Zimmer-Wohnungen haben Durchgangszimmer – der getrennte Zugang zu jedem Raum ist ein echtes Qualitätsmerkmal, das im Exposé herausgestellt werden muss.

Schnell und sorgfältig

Schnelle Vermietung bei gleichbleibender Sorgfalt: Der Eigentümer wollte keinen Leerstand, aber auch keinen Mieter, der nach sechs Monaten wieder auszieht – Geschwindigkeit und Nachhaltigkeit mussten zusammenpassen.

Stadthafen-Lage einordnen

Stadthafen-Lage differenziert darstellen: Die Nähe zum Stadthafen bedeutet Urbanität und kurze Wege, aber auch Veranstaltungslärm an einzelnen Wochenenden – Transparenz schützt vor späteren Beschwerden.

Ähnliches Objekt? Wir bewerten fundiert und verkaufen diskret.

Jetzt bewerten lassen →
Vorgehen / Strategie
Unser Vorgehen

Vorqualifizierung

Vorqualifizierung vor der Besichtigung: Selbstauskunft und Bonitätsprüfung wurden bereits vor dem Besichtigungstermin eingeholt – nur geprüfte Bewerber erhielten einen Termin.

Gezieltes Matching

Gezieltes Matching statt Massenbesichtigung: Individuelle Termine mit Bewerbern, die ein langfristiges Mietverhältnis anstreben – Paare, Berufstätige, Studierende mit gesichertem Einkommen.

Kostentransparenz

Transparente Darstellung aller Kosten: Kaltmiete, Nebenkosten, Kaution und Stellplatzoption wurden den Bewerbern vorab mitgeteilt, damit es keine Überraschungen bei Vertragsabschluss gibt.

Dokumentierte Übergabe

Dokumentierte Wohnungsübergabe: Zustandsprotokoll, Zählerstände, Schlüsselübergabe – alles schriftlich fixiert und beidseitig unterschrieben.

Sie planen einen Verkauf? Diskretion ist unser Standard.

Erstgespräch vereinbaren →
Ergebnis & Learnings
Ergebnis & Einordnung

Ergebnis

Die Wohnung wurde innerhalb kurzer Zeit an einen Mieter vermittelt, der die Stadthafen-Lage und den Grundriss gezielt gesucht hatte. Kein Leerstand zwischen den Mietverhältnissen – die Übergabe war terminlich abgestimmt. Die Mietkaution und der Mietvertrag waren vor dem Einzug vollständig geklärt. Die Vorqualifizierung zahlte sich aus: keine Nachverhandlungen, kein kurzfristiger Auszug – das Mietverhältnis lief stabil. Kontaktieren Sie uns für Ihre Vermietung.

Learnings

Zwei-Zimmer-Wohnungen in der KTV mit über 70 Quadratmetern und separatem Raumzugang sind ein Segment, das sich praktisch von selbst vermarktet. Die eigentliche Arbeit beginnt nach der Anfrage: Wer die Bewerberauswahl ernst nimmt, sichert dem Eigentümer ein stabiles Mietverhältnis. Eine saubere Bonitätsprüfung und ein persönliches Gespräch kosten eine Woche – ein problematischer Mieter kostet Monate. Hinweis: Diese Referenz beschreibt einen abgeschlossenen Vermittlungsfall. Jede Immobilie ist individuell – Ergebnisse sind nicht direkt übertragbar. Angaben ohne Gewähr.

Wohnung vermieten lassen?

Wir finden zuverlässige Mieter – schnell und professionell.

Wie gefragt sind 2-Zimmer-Wohnungen in der KTV?
Zwei-Zimmer-Wohnungen in der Kröpeliner-Tor-Vorstadt gehören zu den meistgesuchten Mietobjekten in Rostock. Die Kombination aus zentraler Lage, kurzen Wegen und urbanem Umfeld spricht Berufstätige, Paare und Studierende gleichermaßen an. Vermieter können in der Regel aus einer Vielzahl von Bewerbern wählen – entscheidend ist die Qualität der Auswahl, nicht die Quantität der Anfragen. Angaben ohne Gewähr.
Was bedeutet „alle Räume separat begehbar“ für Mieter?
Separat begehbare Räume bedeuten, dass jedes Zimmer einen eigenen Zugang vom Flur hat – ohne Durchgangszimmer. Das erhöht die Nutzungsflexibilität: Ein Raum kann als Schlafzimmer, der andere als Wohn- oder Arbeitszimmer genutzt werden, ohne dass man eines der Zimmer durchqueren muss. Für Paare oder Berufstätige im Homeoffice ist das ein relevantes Qualitätsmerkmal. Angaben ohne Gewähr.
Welche Unterlagen braucht ein Mietbewerber?
Mindestens: eine vollständige Selbstauskunft, aktuelle Einkommensnachweise und eine Bonitätsauskunft von einer Wirtschaftsauskunftei. Ergänzend helfen eine Mietschuldenfreiheitsbescheinigung des Vorvermieters und eine Kopie des Personalausweises. Je vollständiger die Unterlagen, desto schneller die Entscheidung – und desto höher die Chance auf eine Zusage. Angaben ohne Gewähr.
Hinweis zur DiskretionDiese Referenz zeigt Prozess und Vorgehen – keine Preise, keine exakten Adressen. Referenzen sind nicht 1:1 übertragbar. Der Wert Ihrer Immobilie wird individuell und marktgerecht ermittelt. Keine Steuer- oder Rechtsberatung. Angaben ohne Gewähr.
Quelle: Eigene Darstellung auf Basis interner Vermittlungsdaten. Stand: 2026. Büchel Immobilien, Rostock.